Back to Home Page of CD3WD Project or Back to list of CD3WD Publications

CLOSE THIS BOOKPartition Wall Making - Course: Timberwork techniques. Instruction examples for practical vocational training (Institut für Berufliche Entwicklung, 35 p.)
VIEW THE DOCUMENT(introduction...)
VIEW THE DOCUMENTPreliminary Remarks
VIEW THE DOCUMENTInstruction Example 5.1.: Calculation of the Pitch Size
VIEW THE DOCUMENTInstruction Example 5.2.: Scribing of the Runners
VIEW THE DOCUMENTInstruction Example 5.3.: Scribing of the Posts
VIEW THE DOCUMENTInstruction Example 5.4.: Scribing of the Stiffening Transoms
VIEW THE DOCUMENTInstruction Example 5.5.: Scribing of the Door Framework
VIEW THE DOCUMENTInstruction Example 5.6.: Assembly and Erection of the Partition Wall

Instruction Example 5.3.: Scribing of the Posts

The posts for the partition wall shown in the detailed drawing are to be scribed.

Known:

Joint post: b = 80 nun, d = 80 mm
Posts: b = 60 mm, d = 80 mm
Stiffening transoms: b = 50 mm, d = 80 mm
Runner height = 50 mm
Room height = 2500 mm
The number of the posts is taken from the foot runners.

Wall (1): 10 posts
Wall (2): 10 posts

1 joint post


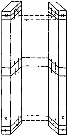
Figure

Hand tools

Hammer

Measuring and testing means

Folding rule, carpenter’s square

Auxiliary accessories

Pencil, marking gauge, abrasive paper, one-ell trestless

Necessary previous knowledge

Reading of drawings, measuring, angling, scribing

Remarks: The joint tail post in wall (1) is dealt with in Instruction Example 5.5.!

Sequence of operations

Comments

1. Decide on the joining side of the posts and mark it.


2. Put the posts on the trestles.

- Do not put on more than 5 posts.
- Place the posts with the joining side on top.
- Put the posts closely together and about flush at the left ends.
- Include joint post, door post and corner post.

3. Scribe shortening at left ends of the posts and mark with section mark.

- Go to the right only as far as necessary to produce a right-angle section.

4. Measure-in and mark the tenon length, measure-in and mark the lower edge of stiffening transom, measure-in and mark the upper edge of stiffening transom, measure-in and mark the tenon length.

- Measure cumulatively!
(20 - 1195 - 1245 - 2420 - 2440 mm).
- Check the two outer markings with the total length.
- Total length:
room height minus two runner heights plus two tenon lengths (2500 - 2 · 50 + 2 · 20) mm = 2440 mm.
- If the sizes (total length and the two outer marking) do not correspond, find the measuring error and make correction.
- Abrase wrong markings to avoid scribing errors!

5. Scribe all markings over the posts put on the trestles.

- Scribe thin lines.
- Place long leg of carpenter’s square at the post put at the front.
- Mark the sections at both ends.

6. Check the scribed lines.

- Place the post from the front at the post at the rear and check the scribed lines.

7. Scribe the tenon parapets.

- Move the posts apart so that the marking gauge can be used for scribing without hindrance.
- Scribe from the joining side.
- Do not cant the marking gauge.
- Scribe at the left ends of the posts all front parapets (at jointing) first, then all rear parapets and then scribe all parapets at the right ends.

8. Scribe the stiffening

- Angle at both sides the scribed lines for stiffening transoms on posts.
- Put long leg of square on joining side.
- Scribe thin lines.

9. Scribe the mortises for stiffenings transoms.

- Use marking gauge.
- Scribe from the joining side.
- First scribe all front parapets at both sides, then all rear parapets at both sides.
- Do not cant the marking gauge.

10. Scribe the corner tenons.

- Scribe only wall posts and corner posts.
- Mind the joining side and, in particular, mirror image of corner tenons.

11. Remove the scribed posts from the trestles and put on the next ones for scribing.

- Do not take off the post at the front!
- It is used as template for the posts to be scribed.
- Do not exceed the maximum number to be put on.
- Joining side to be on top!
- Put the posts closely together and about flush at the left ends.

12. Scribe the posts.

- Place the scribed post (template) and transfer all scribed lines onto the posts put on the trestles.
- Place exactly.
- Check the scribed lines.
- Repeat steps 7., 8. and 9. above, accordingly.
If more posts are required, steps 11. and 12. above are to be repeated always using the same post as template.

13. Number the posts for wall (1).

- Take numbering from head runner.
- Number at lower end of posts.
- Start numbering from the left.
- Mind right-hand corner post (to be provided with last number).
- While the door posts have been scribed, they are not to be numbered.


Scribing of the post

TO PREVIOUS SECTION OF BOOK TO NEXT SECTION OF BOOK

CD3WD Project Donate