Back to Home Page of CD3WD Project or Back to list of CD3WD Publications

CLOSE THIS BOOKManual Thread Cutting - Course: Technique for manual working of materials. Trainees' handbook of lessons (Institut für Berufliche Entwicklung, 22 p.)
VIEW THE DOCUMENT(introduction...)
VIEW THE DOCUMENT1. Purpose of thread cutting
VIEW THE DOCUMENT2. Kinds of threads
VIEW THE DOCUMENT3. Tools for internal threading (tapping)
VIEW THE DOCUMENT4. Tools for external threading
VIEW THE DOCUMENT5. Operation of thread cutting
VIEW THE DOCUMENT6. Special hints on the designation of threads by the example of the metric threads
VIEW THE DOCUMENT7. Technological process of cutting internal threads (tapping)
VIEW THE DOCUMENT8. Technological process of cutting external threads

7. Technological process of cutting internal threads (tapping)

On principle, the following steps are necessary for cutting threads into blind holes as well as through holes:

7.1. Holding/clamping

Workpieces that shall be bolted to one another have to be clamped together and to be drilled and counterbored jointly, so that the alignment of the bore is maintained.

7.2. Scribing/prick-punching

These operations are carried out as described under "drilling and counterboring/countersinking"; it may also be done before clamping.

7.3. Drilling

Since the thread tap takes material out of the bore hole, this bore hole roust be made smaller to a certain degree depending on the nominal diameter of the thread. This bore hole diameter is called "minor diameter" and is calculated with the help of the following formula:

D = N - S

D = minor diameter of the internal thread diameter of the drill
N = nominal diameter
S = thread pitch

Thus, the bore hole must be made smaller than the nominal diameter of the thread by the value of the thread pitch. With coarse screw threads, the "thread pitch" depends on the nominal diameter; with fine screw threads, different thread pitches are possible with the same nominal diameter; therefore, the indication of the thread pitch must be included in the designation of these threads.

The thread pitch is the value (in mm) of the longitudinal movement of a thread tap resulting from one complete revolution of the thread tap.


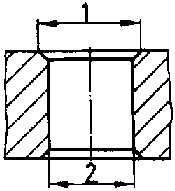
Figure 10 - Dimensions at the internal thread

1 - Nominal diameter (N)
2 - Minor diameter (D)
3 - Pitch (S)

For making the bore holes, the calculation of the rotational speed of the drill (n) is to be taken from the lesson "drilling and counts boring/countersinking".

Selected metric coarse and fine screw threads:

Coarse screw threads

Fine screw threads

Nominal diameter (N)

Thread pitch (S)

Nominal diameter x Thread pitch

2.5

0.45

2.5 x 0.35

24 X 2

3

0.5

4 x 0.5

42 X 1

4

0.7

6 x 0.5

42 X 1.5

5

0.8

6 x 0.75

42 X 2

6

1

10 x 0.5

42 X 3

8

1.25

10 x 0.75

42 X 4

10

+)

1.5

10 x 1


12


1.75

10 x 1.25


16

2

16 x 0.75


20

2.5

16 x 1


24

3

16 x 1.5


30

3.5

24 x 0.75


36

4

24 x 1


42

4.5

24 x 1.5


Generally applicable formula:

V = cutting speed (22 m/min)
p = 3.14

With blind holes, the chamfer of the thread tap (third tap) is to be taken into consideration as follows:

The blind hole must be made deeper than required by the depth of the thread by the size of the chamfer (runout depth).


Figure 11 - Indication of the depths at the internal thread

1 - Depth of hole (TB)
2 - Depth of thread (TG)
3 - Runout depth (TA)

This is expressed by the following formula:

TB = TG + TA

TB = depth of hole
TG = depth of thread
TA = runout depth

The following formula is considered as a "rule of thumb" for the calculation of the runout depth of small threads:

TA = 0.7 x D

The exact value of the runout depth for metric coarse and fine screw threads can be taken from the following table:

N

TA

M

3

2.8

M

4

3.4

M

5

3.6

M

6

4.5

M

8

5

M

10

5.5

M

12

6

M

16

6.5

M

20

7.5

M

24

8.5

M

30

10

M

36

11

M

42

12

M

48

13

Example:

A bore hole shall be made for a metric coarse screw thread with a nominal diameter of 6 mm; the depth of the thread shall be 12 mm.

How must the bore hole be made?

1. Diameter of the drill:

D = N - S
D = 6 mm - 1 mm
D = 5 mm

2. Depth of hole:

TB = TG + TA
TB = 12 mm + 4.5 mm
TB = 16.5 mm

The bore hole of 16.5 mm in depth is made by the drill D = 5 mm.

7.4. Countersinking

Through holes have to be countersunk from either side by a 60° countersinking cutter (also 90° countersinking cutter).


Figure 12 - Countersinking of internal threads

1 - Countersinking diameter (Ds)
2 - Minor diameter

In doing so, the countersinking diameter (Ds) shall be equivalent to the nominal diameter of the thread:

Ds = N

The rotational speed for countersinking of bore holes up to a diameter of 10 mm can be 350 r.p.m., for larger bore holes it must be lower.

n » 350 r.p.m.

7.5. Thread cutting

With short through holes nut taps have to be used; with blind holes only serial taps must be applied. Auxiliary means are tap wrenches. Lubricating and cooling agents are to be seen in the below table:

Steel

Cutting oil

Aluminium alloys:

Spirit

Chromium-nickel alloys:

Colza oil, petroleum

Note:

If several parts shall be connected by screw connection, and if these parts were provided with a bore hole in one clamping, this clamping has to be released before the thread is cut. Only in the last part - starting from the screw head - the thread is allowed to be cut. All parts situated in between are bored; that is to say, they get a through hole which must be larger than the nominal diameter of the thread.

7.6. Cleaning of the bore hole

After the thread is cut, chips and remaining oil must be removed from the bore hole by means of compressed air or brush.

7.7. Checking

Thread depths and minor diameters of internal threads are checked by vernier caliper, the accuracy of fit of the thread is checked by the thread limit plug gauge according to the nominal diameter.


Figure 13 - Checking of the thread

How is the minor diameter of a tapped hole calculated?
_______________________________________________________________________________

How must the chamfer of the thread tap be taken into consideration in calculating the depth of the bore?
________________________________________________________________________________

How are tapping-size holes to be countersunk?
________________________________________________________________________________________________________________________________________________________________

Task:

The following tool and machine values have to be determined for making an M 10 internal thread of 15 mm in depth into a steel part of general mild steel:

Diameter of the drill (D): __________________________
Rotational speed (n) : ______________________________
Depth of hole (TB): _______________________________
Countersinking diameter (Ds): _______________________
Rotational speed (n) : ______________________________

The individual steps of operation together with the calculated values for the bore hole have to be entered in the following table, blank spaces have to be completed:

No.

Operation

Cutting tools, testing tools and auxiliary means

Tool and machine values

1.

Clamping

-

2.

Scribing/prick-punching

3.

Drilling

Drill

D =

Vernier caliper

TB =



Lubricating and cooling agents

n =

4.

Countersinking

Countersinking cutter

Ds =

Vernier caliper

n =

5.

Thread cutting

6.

Cleaning

-

7.

Checking

Thread limit plug gauge

This table may be used as a preparation for practical exercises in thread cutting.

TO PREVIOUS SECTION OF BOOK TO NEXT SECTION OF BOOK

CD3WD Project Donate