| 
 | ||||||||||||||||
8.1 CHECKLIST FOR SOLAR WATER INSTALLATIONS
1) Careful site selection. Check for full sunshine throughout the year.
2) Structure to hold weight of system.
3) Water supply: Sufficient quantity and pressure (head).
4) Continued accessibility of installation (collectors, tank) for maintenance and repairs.
5) Cold connection to supply pipeline to prevent return of hot water into cold water pipeline, (e.g. non-return valve or separate pipeline from feed or roof tank).
6) Safety valve or vent pipe for over pressure release (due to expansion of hot water).
7) Ventilation of system: Requires gradient in circulation pipes and an air release valve or a vent pipe on top of the hot water storage tank.
8) Slopes in pipelines, to avoid blockages of flow through air bubbles. Avoid U-bend installations (especially in low-pressure supply systems).
9) Insulation requirements for hot water storage tank, circulation pipes and for hot water pipelines.
10) Drainage facility (tap, cap) for drainage of entire system.
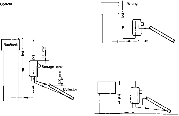
Four common installation mistakes
 
1st mistake: Distance between storage tank and collector is too small-circulation can reverse during the night, which means great heat loss!
2nd mistake: Cold-and hot water pipe connections are mixed up-cold-and hot water layer are disturbed which results in low water temperature!
3rd mistake: U-bent in collector circuit-air accumulates and interrupts the circulation, which means no heating at all!
4th mistake: Distance between rooftank and storage tank is too small-below a certain level in the rooftank the storage tank is not refilled, which means hot water doesn't flow!
8.2 LEAFLET SOLAR SYSTEM
The natural circulation system is driven by one fundamental principle: hot water is lighter than cold water and tends therefore to rise.
The figures to the side show, how the system cleverly uses this principle to avoid any moving parts except the water.
The sun heats the water in the collector, which starts to rise and accumulate at the top of the storage tank. It is replaced by cold water from the bottom of the tank.
As long as the collector water is hotter than the storage tank water, it keeps circulating. Hot and cold water in the storage tank will not mix. Always the hottest water is the top layer. Therefore during night, when the collector is cold, the circulation will not reverse. Never the hot water can sink down to the cold collector.
If hot water is consumed it is always the hottest water in the storage tank, as the hot outlet is at the very top. The consumption is replaced by cold water from the rooftank. This water has to enter at the bottom of the storage tank so it will not disturb the hot and cold water layers.
FIGURE
 
Essentials
-Storage tank has to be higher up than the collectors, the roof tank has to be higher up than the storage tank.
-Heating circuit: Cold water leaves the storage tank at the bottom and enters the collector at the bottom. Hot water leaves the collector at the top and enters the storage tank at about 2/3 in highs.
-Consumer circuit: Hot water leaves the storage tank at the top and is replaced by cold water from the roof tank entering at the bottom.
Solar collector, MTC-SC-85
Datas:
| Vertical pipe type and overall size | 1810 x 1 10 mm | 
| Collector effective area | 1.22 m² | 
| Weight | 47 kg (empty) | 
| Contain of water | 3.9 ltr. | 
| Test pressure | 10 bar | 
| Working pressure | 5 bar | 
| Absorber | 36 fins alu. sheet 0.5 | 
| Absorber surface | Black colour paint | 
| Collector box / frame | Galvanized steel sheet 0.55 | 
| Collector box inside / outside | 1 coat painted | 
| Cover | Single glass 4 mm | 
| Insulation back/side | 50 mm fibreglass | 
THREADS AND FORMULAS
8.3 SHEET-METAL AND STEEL PIPES
Drill diameter for
| For metric threads | For whitworth threads | ||||
| Thread size | Through hole | Threaded hole | Thread size | Through hole | Threaded hole | 
| M3 | 3 6 | 2 5 | 1/4" | 7.4 | 5 0 | 
| M4 | 4 8 | 3.3 | 5/16" | 9.5 | 6.4 | 
| M5 | 5 8 | 4 2 | 3/8" | 11.5 | 7.7 | 
| M6 | 7.0 | 5.0 | 7/16" | 13.0 | 9.25 | 
| M8 | 9 5 | 6 7 | 1/2" | 15.0 | 10 25 | 
| M10 | 115 | 84 | 5/8" | 18.0 | 1325 | 
| M12 | 140 | 100 | 3/4" | 22.0 | 16.25 | 
Circle and cylinder
A =pi/4 D²
Area = pi/4 x Diameter x Diameter
 
C = pi r² = 0.785 D²
C= p D
| Circumference | =pi x Diameter | 
|  | = 3.142 D | 
|  | = 2 pi r | 
V = A × h
V = A0 x h
V= pi /4 x D² x h
Lateral area of the cylinder
Al = pi x D x h
FIGURE
 
8.4 STEEL DIMENSIONS AND WEIGHT
MS-flat
| Width mm | Thickness mm | ||||||||
|  | 3 | 4 | 5 | 6 | 7 | 8 | 10 | 12 | 14 | 
| 10 | 0,236 | 0,314 | 0,393 | 0,471+ | 0 550+ | 0,628+ |  |  |  | 
| 12 | 0,283 | 0,377 | 0,471 | 0,565 | 0 659 + | 0,754 | 0,942 + |  |  | 
| 15 | 0,353 | 0,471 | 0,589 | 0,707 | 0,824 + | 0,942 | 1,18 | 1,41 + |  | 
| 16 | 0,377 | 0,502 | 0,628 | 0,754 | 0,879 + | 1,00 | 1,26 | 1,51 + |  | 
| 18 | 0,424 | 0,565 | 0,707 | 0,848 | 0,989 + | 1,13 | 1,41 | 1,70 + | 1,98 + | 
|  |  |  |  |  |  |  |  |  |  | 
| 20 | 0,471 | 0,628 | 0,785 | 0,942 | 1,10 | 1,26 | 1,57 | 1,88 | 22,20 | 
| 22 | 0,518 + | 0,691 | 0,864 | 1,04 | 1,21 | 1,38 | 1,73 | 2,07 | 22,42+ | 
| 24 | 0,565 + | 0,754 + | 0,942+ | 1,13+ | 1,32+ | 1,51 + | 1,88+ | 2,26+ | 2,64+ | 
|  |  |  |  |  |  |  |  |  |  | 
| 25 | 0,589 | 0,785 | 0,981 | 1,18 | 1,37 | 1,57 | 1,96 | 2 36 | 2,75 | 
| 27 | 0,636 + | 0,848 + | 1,06 | 1,27 + | 1,48 + | 1,70 + | 2,12 + | 2 54 + | 2,97 + | 
| 28 | 0,659 + | 0,879 + | 1,10 + | 1,32 + | 1,54 + | 1,76 + | 2,20 + | 2,64 + | 3,08 + | 
| 30 | 0,707 | 0,942 | 1,18 | 1,41 | 1,65 | 1,88 | 2,36 | 2,83 | 33,30+ | 
|  |  |  |  |  |  |  |  |  |  | 
| 32 | 0,754 + | 1,00 + | 1,26 + | 1,51 + | 1,76 + | 2,01 + | 2,51 + | 3,01 + | 3,52 + | 
| 35 | 0,824 | 1,10 | 1,37 | 1,65 | 1,92 | 2,20 | 2,75 | 3,30 | 33,85 + | 
| 40 | 0,942 | 1,26 | 1,57 | 1,88 | 2,20 | 2,51 | 3,14 | 3,77 | 44,40 + | 
| 45 | 1,06 | 1,41 | 1,77 | 2,12 | 2,47 | 2,83 | 3,53 | 4,24 | 44,95 + | 
|  |  |  |  |  |  |  |  |  |  | 
| 50 | 1,18 | 1,57 | 1,96 | 2,36 | 2,75 | 3,14 | 3,93 | 4 71 | 5,50+ | 
| 55 | 1,30 | 1,73 | 2,16 | 2,59 | 3,02 | 3,45 | 4,32 | 518 | 66,04 + | 
| 60 | 1,41 | 1,88 | 2,36 | 2,83 | 3,30 | 3,77 | 4,71 | 5,65 | 66,59 + | 
| 65 | 1,53 | 2,04 | 2,55 | 3,06 | 3,57 | 4,08 | 5,10 | 6,12 | 77,14 | 
FIGURE
 
Round bar
| Ø d | cm² | kg/m | Ø d | cm² | kg/m | 
|  |  |  |  |  |  | 
| 5 + | 0,196 | 0,154 | 9 | 0,636 | 0,499 | 
| 5,5 | 0,238 | 0 187 | 9,5+ | 0,709 | 0,556 | 
| 6 | 0,283 | 0 222 | 10 | 0,785 | 0,617 | 
| 6,5 + | 0,332 | 0,260 | 10,5 + | 0,866 | 0,680 | 
|  |  |  |  |  |  | 
| 7 | 0,385 | 0 302 | 11 | 0,950 | 0,746 | 
| 7,5 + | 0,442 | 0 347 | 11,5 | 1,04 | 0,815 | 
|  | 0,503 | 0,395 | 12 | 1,13 | 0,888 | 
| 8,5 + | 0,568 | 0,445 | 12,5 + | 1,23 | 0,963 | 
FIGURE
 
Angle iron
| Size | a x b | Thickness | cm² | kg/m | Size | a x b | Thickness | cm² | kg/m | 
| 15 | 15 | 3 | 0,82 | 0,640 | 40 | 40 | 3 + | 2,35 | 1,84 | 
|  |  |  |  | 40 | 40 | 4 | 3,08 | 2242 |  | 
| 20 | 20 | 3 | 1,12 | 0,880 | 40 | 40 | 5 | 3,79 | 297 | 
| 20 | 20 | 4 | 1,45 | 1,14 | 40 | 40 | 6 | 4,48 | 3,52 | 
|  |  |  |  |  | 40 | 40 | 7 + | 5,13 | 4,03 | 
| 25 | 25 | 3 | 1,42 | 1,12 | 40 | 40 | 8 | 580 | 4 55 | 
| 25 | 25 | 4 | 1,85 | 1,45 |  |  |  |  |  | 
| 25 | 25 | 5 + | 2,26 | 1,77 | 45 | 45 | 3 + | 2,66 | 2,09 | 
|  |  |  |  |  | 45 | 45 | 4 | 3,49 | 22,74 | 
| 30 | 30 | 3 | 1,74 | 1,36 | 45 | 45 | 5 | 4,30 | 3,38 | 
| 30 | 30 | 4 | 2,27 | 1,78 | 45 | 45 | 6 | 509 | 4 00 | 
| 30 | 30 | 5 | 2,78 | 2,18 | 45 | 45 | 7 | 586 | 4 60 | 
| 30 | 30 | 6 | 3,27 | 2,57 |  |  |  |  |  | 
|  |  |  |  |  | 50 | 50 | 4+ | 3,89 | 33,06 | 
| 35 | 35 | 3+ | 2,04 | 1,60 | 50 | 50 | 5 | 4,80 | 3,77 | 
| 35 | 35 | 3,5+ | 2,33 | 1,87 | 50 | 50 | 6 | 5,69 | 4,47 | 
| 35 | 35 | 4 | 2,67 | 2,10 | 50 | 50 | 7 | 6 56 | 515 | 
| 35 | 35 | 4,5 | 2,93 | 2,30 | 50 | 50 | 8 | 7,41 | 582 | 
| 35 | 35 | 5 | 3,28 | 2,57 | 50 | 50 | 9 | 824 | 647 | 
| 35 | 35 | 6 | 3,87 | 3,04 |  |  |  |  |  | 
8.5 SHEET-METAL
Convertion table for sheet thickness
| Thickness | Thickness | Thickness | Thickness | 
| in ISWG | in mm | in ISWG | in mm | 
| 30 | 0.314 | 19 | 1.015 | 
| 29 | 0.345 | 18 | 1.218 | 
| 28 | 0.376 | 17 | 1.422 | 
| 27 | 0.416 | 16 | 1.625 | 
| 26 | 0.457 | 15 | 1.828 | 
| 25 | 0.507 | 14 | 2.040 | 
| 24 | 0.558 | 13 | 2.337 | 
| 23 | 0.609 | 12 | 2.641 | 
| 22 | 0.711 | 11 | 2.946 | 
| 21 | 0.812 | 10 | 3.250 | 
| 20 | 0.914 |  |  | 
FIGURE
 
Steel sheet
| Plate thickness | Weight kg/m² | size of plate | |
|  |  | 100 x 2000 mm | 1250 x 2500 mm | 
| in mm |  | weight in kg | |
| 0.5 | 4 | 8 | 12.5 | 
| 0.62 | 5 | 10 | 16 | 
| 0.75 | 6 | 12 | 19 | 
| 087 | 7 | 14 | 22 | 
| 1 | 8 | 16 | 25 | 
| 1.25 | 10 | 20 | 31 | 
| 1.5 | 12 | 24 | 38 | 
| 1.75 | 14 | 28 | 44 | 
| 2 | 16 | 32 | 50 | 
| 2.5 | 20 | 40 | 63 | 
| 3 | 24 | 48 | 75 | 
| 3.5 | 28 | 56+ | 88+ | 
| 4 | 32 | 64 | 100 | 
| 5 | 40 | 80 | 125 | 
| 6 | 48 | 96 | 150 | 
| 7 | 56 | 112 | 175 | 
| 8 | 64 | 128 | 200 | 
| 9 | 72 | 144+ | 225+ | 
| 10 | 80 | 160 | 250 | 
Alu. sheet
| Plate | Weight | Size of plate | 
| thickness | kg/m² | 1000 x 2000 mm | 
|  | in mm | weight in kg | 
| 0.5 | 1.35 | 5.4 | 
| 0.75 | 1.62 | - | 
| 0.80 | 2.18 | - | 
Copper sheet
| 0.5 | 4.45 | 8.9 | 
| 0.55 | 4.90 | 9.8 | 
| 0.6 | 5.35 | 10.70 | 
| 0.7 | 6.25 | 12.5 | 
8.6 ADDRESSES OF SUPPLIERS
| 1) Air vent valve "TACO" | TACO Armaturen AG | 
| (also heat exchangers, | Buckhauserstrasse 40 | 
| solar modules, etc.! | Postfach 1381 | 
|  | CH-8048 Zurich/Switzerland) | 
| 2) Differential-Thermostat | W. Kuster AG | 
| type "RT" (Bimetal- | Parkstrasse 6 | 
| switching) DANFOSS) | 4402 Frenkendorf/Switzerland | 
|  |  | 
| 3) 12 V/DC circulation | R. Brun | 
| pump ARWA vortex | Alternative Energy Technologies | 
| (and other solar | 95 Ruefa | 
| appliances) | CH-7015 Tamins, Switzerland | 
SOLAR WATER HEATERS FURTHER READINGS:
1) Guidelines for the cost-effective design of solar water
heating collectors
by A W K McGregor, Senior Lecturer
Dept. of Mechanical
Engineering
Napier College, Colinton Road
Edinburgh EH10 5DT, Scotland,
U.K.
 
2) Solaranlagen
von H. R. Schmidli,
Berufsschullehrer,
erhaeltlich: SSIV, Postfach, Ch-8023 Zuerich, Switzerland
 
3) Le chauffe-eau solaire
de Thierry Cabirol et
al.
EDISUD, La Calade, F-13090 Aix-en Provence, France
 
4) Agua caliente solar (Original: practical solar
heating)
1978: Kevin McCartney -Prism Press, Chalmington, Dorchester
1980:
H. Blume Ediciones, Rosario, 17, Madrid -5, Spain
 
5) Plumbing, hot water supply and heating systems
by F. Hall
(1986)
Longman Scientific & Technical, Longman House,
Burnt Mill,
Harlow, Essex CM20 2JE, England, U.K.
 
6) Plumbing and heating
by F. Hall (1980)
The Macmillan
Press, Ltd, London and Basingstoke
 
7) Drinking water installations and drainage requirements in
Nepal
by A. Bachmann and H. Waldvogel
a publication by MTC-Nepal and
Skat-Switzerland
SKAT, Varnbuelstrasse 14, CH-9000 St. Gallen,
Switzerland