Back to Home Page of CD3WD Project or Back to list of CD3WD Publications

CLOSE THIS BOOKBiogas Plants (GTZ, 1988, 85 p.)
6. Biogas utilization
VIEW THE DOCUMENT(introduction...)
VIEW THE DOCUMENT6.1 Biogas appliances

Biogas Plants (GTZ, 1988, 85 p.)

6. Biogas utilization

Biogas can be used in the same way as any other combustible gas. When biogas is mixed with air in the proportions of 1:20, highly explosive detonating gas forms. Leaky gas pipes in enclosed spaces constitute a hazard! However, there have been no reports of dangerous explosions caused by biogas. The calorific value of biogas is about 6 kWh/m³ - this corresponds to about half a litre of diesel oil. The net calorific value depends on the efficiency of the burners or appliances (see Table, Figure 38).


Fig. 38: Biogas: properties and utilization

Efficiency is high if, for example, a litre of water boils quickly. This takes longer if the burner is wrongly set. Efficiency is then poor. The air supply substantially determines the efficiency.

A gas pressure of 5-20 cm WG is best for cooking. Lamps require a pressure of about 10 cm WG.

The hydrogen sulphide in the biogas combines with condensate to form corrosive acids. Water-heating appliances and utensils and refrigerators are particularly at risk. The combustion chambers and burners should be made of cast steel, high-grade steel or enamel.

Biogas can be rid of sulphur by iron oxide filters

(FeO + H2S ® FeS + H2O; 2FeS + O2 ® 2FeO + 2S).

With large volumes of gas, the filter material has to be replaced frequently and this becomes a laborious task. In this case filtration should be omitted and high-grade steel utensils should be used despite the higher cost. The gas does not have to be filtered for use in engines. The gas pressure may be low because the engine aspirates the gas. It is seldom worthwhile using the gas from simple plants to run engines.

Biogas cannot be economically liquefied. Gas pipes may be made of steel, copper, ruber or plastic. Rubber hoses and rigid PVC pipes quickly become porous and leaky when exposed to the sun and should therefore either be shaded or wrapped in some sort of protective material.

The longer the gas pipes are the greater is the decrease of pressure (Figure 39). The gas pipe must have an outlet for perspiration water (Figure 40).


Fig. 39: Pressure drop in gas pipes The gas pressure (p) falls with pipe length (L). The density relative to air is indicated by "s". The pressure drop depends on the pipe friction (c) and especially on the diameter of pipe (c = 2.24 in galvanized steel pipes (G.I.); c = 2.80 in smooth plastic pipes). The curve shows the gas flow (Q) in a galvanized steel pipe allowing for a pressure drop of p = 1.25 cm WC. Bends increase the pressure drop.


Fig. 40: Condensate trap Biogas contains water vapour. If the gas is cooled, condensate forms. It always collects at the lowest point in the pipe. It must be possible to drain condensate from this point, otherwise the pipe will be blocked. Water pockets must be avoided. Condensate may be drained by: (a) a gaslight water tap (ball valve), (b) a Patel type overflow water trap, or (c) a simple U-shaped trap (see also Figure 31). Approach (d) is recommended for cases involving a high groundwater level.

6.1 Biogas appliances

Biogas appliances are domestic appliances. They serve a practical purpose. However, they are also relevant to the self-image of the housewife or master of the house. The biogas plant will be looked after better the higher the prestige value of the gas appliances. For this reason even simple, inexpensive gas appliances made in the village should be of appealing design. They must be not only cheap but also, and in particular, "modern".

Most households cook on two flames. Two-flame burners are preferred. The burners (Figure 41) should be set initially and then fixed. Efficiency will then remain at a high practical level.


Fig. 41: Diagram of a gas burner and a lamp

Burner: The values given are rules of thumb for a gas pressure of 5-10 cm WG. If the pressure is higher, the mixing chamber (M) must be enlarged so that the gas particles can mix adequately with oxygen. The gas/air mixture is regulated by means of the adjusting screw (J). A burner is correctly adjusted if only half of all the flames are burning before the pan is placed in position.
Lamp: Things to watch for include the right area ratio between the air hole and the gas nozzle (a), adequately sized gas/air mixing chamber (b) and an air trap (c) that ensures a sufficiently high temperature around the gas mantle without causing a shortage of oxygen for combustion.

In villages without electricity, lighting is a basic peed and a status symbol. However, biogas lamps have low efficiency. This means that they also get very trot.' If they hang directly below the roof, there is a fire risk. The mantles do not last long. It is important that the gas and air in a biogas lamp be thoroughly blended before the mixture reaches the gas mantle, and that the air space around the mantle be adequately warm.

Particular problems also arise with biogas-operated refrigerators. The composition of biogas varies substantially from day to day. The gas pressure fluctuates excessively with the amount of gas stored even in a floating-drum plant. Special' stable-burning jets are therefore needed - especially if the refrigerator is thermostatically controlled and the flame burns only when required. On every ignition there is a risk of the flame going out. Gas will then discharge without burning. The gas supply must therefore automatically be cut off if the flame goes out.

A gas appliance specialist must always be called in where biogas is to be used in refrigerators!

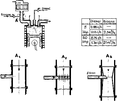
For use of biogas in engines see Figure 42.


Fig. 42: Gas connection to diesel engine

The gas is drawn into the cylinders together with the combustion air. The connection to the intake manifold may take different forms. Detail A2 gave the best results in Chinese tests. Owing to the high ignition temperature of biogas, a diesel engine must always be operated with a mixture of biogas and diesel oil. A spark-ignition engine will also operate on 100% biogas. Biogas burns less rapidly than diesel fuel. Consequently, engines designed for less than 2000 rpm are the better choice. Spark-ignition engines run about twice as fast as diesel engines, thus leading to lower efficiency when operating on biogas.

TO PREVIOUS SECTION OF BOOK TO NEXT SECTION OF BOOK

CD3WD Project Donate